Anasayfa
Hakkımızda
Hizmetler
Mimari Projeler
Taahhüt
Proje yönetimi
Tarihi Eser Projeler
Tarihi Eser Uygulama
Kentsel Dönüşüm
Danışmanlık
Projeler
Blog
İletişim
English
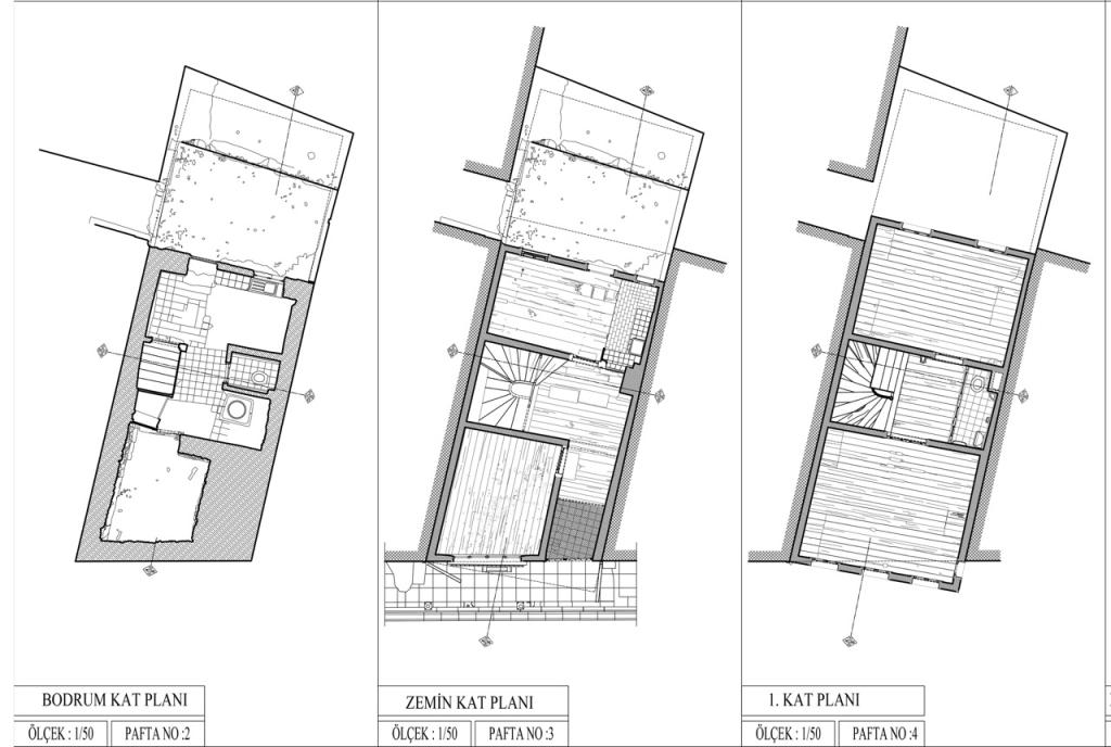
2020 - Beşiktaş Ortaköy restorasyon
2020 - Beşiktaş Ortaköy restorasyon
Yıl :
2020
Şirket :
Proje Adı :
Konumu :
Beşiktaş